WOHA丨Kampung Admiralty社區綜合體

WOHA在新加坡完成了一個混合用途開發項目——Kampung Admiralty社區綜合體,將大量公共設施集中在一棟建筑內。建筑師解釋說:“傳統方法是讓每個政府機構分割出他們自己的土地,從而形成幾個獨立的建筑,另一方面,這個一站式的綜合綜合體最大限度地利用土地,是滿足新加坡老齡化人口需求的模型范本。”
In singapore, WOHA has completed ‘kampung admiralty’, an integrated mixed-use development that unites a wealth of public facilities beneath one roof._ ‘the traditional approach is for each government agency to carve out their own plot of land, resulting in several standalone buildings,’_ explain the architects._ ‘this one-stop integrated complex, on the other hand, maximizes land use, and is a prototype for meeting the needs of singapore’s ageing population.’_








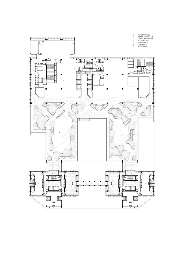
由于場地緊張,高度限制僅為45米(148英尺),WOHA設計了一個由三個“地層”組成的多樣化的垂直村莊。被設想為“總會三明治”,下層可容納一個社區廣場,上面有一個醫療中心。最上面的樓層設有一個社區公園,為老年人提供住宿。設計團隊解釋說,“他們與醫療、社會、商業和其他便利設施的緊密聯系,支持代際聯系并促進積極老齡化。”
As the site is tight, with a height limit of just 45 meters (148 ft), WOHA devised a diverse vertical village comprised of three ‘strata’. conceived as a ‘club sandwich’, the lower level accommodates a community plaza, with a medical center housed above. the uppermost storey features a community park with living accommodation for senior citizens. _‘the close proximity to healthcare, social, commercial and other amenities support inter-generational bonding and promote active ageing in place,’_ the design team explains.







作為社區客廳,底層廣場能夠舉辦各種活動和節目。這個室外空間被上面的樓層遮蓋著,這意味著無論天氣情況如何,都可以在這里進行活動。由于中央庭院的設置,二樓的醫療中心充滿了自然光。同時,周邊窗戶還確保了待在室內的老年患者可以與大自然和其他人保持聯系。
Designed as a community living room, the ground floor plaza is capable of hosting a variety of events and programming. this outdoor space is shaded and sheltered by the storey above, meaning that activities can take place regardless of the weather or climatic conditions. on the second level, the medical center is filled with natural daylight thanks to the central courtyard. meanwhile, perimeter windows also ensure that senior patients — who are able to remain on site — feel connected to nature and to other people.




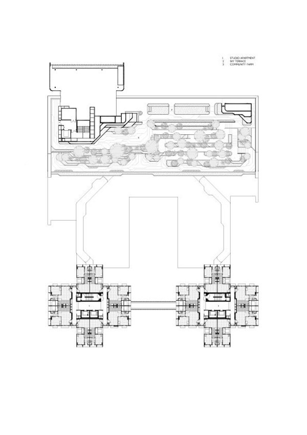
屋頂公園的規模很小,可以讓居民聚在一起鍛煉、聊天或照料社區農場。托兒所和自帶老年人護理服務的老年人活動中心等附屬功能空間并排設置,將年輕人和老年人聚集在一起。綜合體內共設有104間老年公寓,分布在兩個11層的街區內,供老年單身人士或夫妻入住。共享入口處的“共享長椅”則鼓勵老年人走出家門,與鄰居互動。
The intimately scaled rooftop park allows residents to come together to exercise, chat, or tend community farms. complementary programs such as childcare and an active aging hub (including senior care) are located side by side, bringing together citizens of different ages. a total of 104 apartments are provided in two 11-storey blocks for elderly singles or couples. strategically positioned at shared entrances, ‘buddy benches’ encourage seniors to come out of their homes and interact with their neighbors.
項目圖紙:




項目概況:
項目名稱:Kampung Admiralty社區綜合體
位置:新加坡,伍德蘭大道71號
占地面積:8,981平方米
容積率:3.60
建筑與室內設計:WOHA
項目組:wong mun summ, richard hassell, pearl chee, goh soon kim, phua hong wei, richard kuppusamy, jonathan hopper, yang han , lau wannie, gillian hatch, kwong lay lay, zhou yubai
室內設計:sofwan,john paul r gonzales
業主:住房和發展委員會
土木及結構工程師:ronnie & koh consultants pte. ltd
機電工程師:AECOM pte. ltd.
工料測量師:davis langdon KPK (singapore) pte. ltd.
景觀顧問:ramboll studio dreiseitl singapore pte. ltd.
綠色標志顧問:AECOM pte. ltd.
主承包商:lum chang building contractors pte ltd
project info:
title: kampung admiralty
location: woodlands drive 71, singapore
design inception: march 2013
piling: april 4, 2014 – october 7, 2014
start of construction: october 31, 2014
completion: 3rd quarter 2017
TOP: may 8, 2017
site area: 8,981 sqm
build-up area: 53,066.49 sqm
gross floor area: 32,331.60 sqm
plot ratio: 3.60
community space: 10,030.39 sqm
community plot ratio: 1.12
architect and interior design: WOHA
project team: wong mun summ, richard hassell, pearl chee, goh soon kim, phua hong wei, richard kuppusamy, jonathan hopper, yang han , lau wannie, gillian hatch, kwong lay lay, zhou yubai
interior design: sofwan, john paul r gonzales
client: housing and development board
civil and structural engineer: ronnie & koh consultants pte. ltd
mechanical & electrical engineer: AECOM pte. ltd.
quantity surveyors: davis langdon KPK (singapore) pte. ltd.
landscape consultant: ramboll studio dreiseitl singapore pte. ltd.
greenmark consultant: AECOM pte. ltd.
main contractor: lum chang building contractors pte ltd
編輯:liqing
相關閱讀
江蘇揚州:今年實施五大攻堅行動提升城市綠化
城市道路綠化增綠行動。利用今年春季綠化黃金季節,針對城市道路綠化達標率、林蔭路覆蓋率等指標,全面開展道路綠化增綠提綠補綠,重點對87條道路的行道樹“有綠無蔭、有景少蔭”、綠化品種單一等問題進行整改,形成配置合理、錯落有致、層次清晰的道路綠化景觀【詳細】
北京昌平新城東區將打造濱水商業消費新地標
昌平新城東區位于昌平區南邵鎮,規劃建設用地面積11平方公里,規劃人口12萬,圍繞打造首都北部消費新地標編織街區控規已獲批。未來,昌平新城東區將打造成為京北體驗消費示范區、山水宜居典范城區、高水平綜合服務承載區和智慧產研創新園區【詳細】
南寧園博園舉辦“禮樂園博·南寧花朝盛典”
活動期間,南寧園博園還舉辦了漢服新秀大賽、同袍巡游、及笄成人禮、國風婚禮妝照展示、明制婚禮儀式典禮、六藝游園、書畫體驗、國風集市等精彩紛呈的活動,同時邀請眾多知名國風模特參與表演展示【詳細】
成都首屆“最美公園”評選結果出爐
據成都市公園城市建設管理局相關負責人介紹,本次“最美公園”評選范圍包括23個區(市)縣已建成開放的1514個公園,包括綜合公園、口袋公園,還有郊野公園【詳細】



