帝奧景觀丨東海府




























項目信息
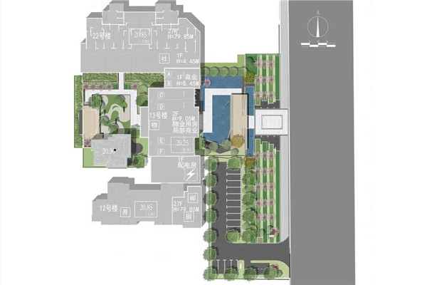
項目名稱:東海府
項目地點:江蘇省連云港市東海縣
景觀面積:47354㎡
業主單位:中梁控股集團、新城控股集團
甲方管理團隊:房震、謝丹平、苗蘭飛、張成愛
建筑設計:上海帝奧設計集團
景觀設計:帝奧景觀集團三上工作室
設計團隊:林平平、趙哲、李艷玲、郭焱釗、夏夢佳
后期團隊:張美榮、周子偉、林曉森、王天驕
施工單位:江蘇古楓市政園林建設有限公司
設計時間:2020.7
完成時間:2020.9
項目攝影:傑意建筑攝影
編輯:liqing
相關閱讀
江蘇揚州:今年實施五大攻堅行動提升城市綠化
城市道路綠化增綠行動。利用今年春季綠化黃金季節,針對城市道路綠化達標率、林蔭路覆蓋率等指標,全面開展道路綠化增綠提綠補綠,重點對87條道路的行道樹“有綠無蔭、有景少蔭”、綠化品種單一等問題進行整改,形成配置合理、錯落有致、層次清晰的道路綠化景觀【詳細】
北京昌平新城東區將打造濱水商業消費新地標
昌平新城東區位于昌平區南邵鎮,規劃建設用地面積11平方公里,規劃人口12萬,圍繞打造首都北部消費新地標編織街區控規已獲批。未來,昌平新城東區將打造成為京北體驗消費示范區、山水宜居典范城區、高水平綜合服務承載區和智慧產研創新園區【詳細】
南寧園博園舉辦“禮樂園博·南寧花朝盛典”
活動期間,南寧園博園還舉辦了漢服新秀大賽、同袍巡游、及笄成人禮、國風婚禮妝照展示、明制婚禮儀式典禮、六藝游園、書畫體驗、國風集市等精彩紛呈的活動,同時邀請眾多知名國風模特參與表演展示【詳細】
成都首屆“最美公園”評選結果出爐
據成都市公園城市建設管理局相關負責人介紹,本次“最美公園”評選范圍包括23個區(市)縣已建成開放的1514個公園,包括綜合公園、口袋公園,還有郊野公園【詳細】



